家づくりの流れ


01.家づくりご相談
*住宅ローンのご相談もさせていただいております。


02.敷地調査
敷地を測量し確認をさせていただきます。周辺環境・方位・日当たり・敷地の状態などを把握します。建築基準法への対応もいたします。
土地をお探しの方…ご希望に合った土地を一緒にお探します。


03.プランのご提案
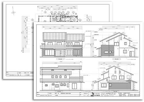
お聞きしたご要望をもとにプランをご提案いたします。ご家族の構成・生活動線・収納などお客様が暮らしやすい理想の住まいをさまざまな角度から考えていきます。平面図・立面図・3Dパース図面作成により、リアルでわかりやすくご説明させていただきます。ここで家づくりに関わる全体の予算もご相談しながら進めていきます。じっくりと何度でも打ち合わせを重ね、ご納得いただけるプランにいたします。


04.本図面作成・お見積り
何度も打ち合わせを重ね、ご納得していただきましたら最終プランに決定し、本図面の作成・お見積りへと進んでいきます。平面図・立面図・設計図面の作成など、細かく図面に描きます。お見積りも柱の一本一本からひろっていきます。キッチン・お風呂・洗面・トイレなどはショールームに訪問いただきご予算に合わせて決めていただきます。水廻りも含めたお見積書を作成し、ご納得いただけましたらご契約へと進みます。


05.ご契約
請負契約書を締結してご契約となります。家は一生に一度の大きなお買い物です。
池田建設ならではの丁寧な家づくりを精一杯させていただきます。


06.申請書・各種手続き
建築に必要な申請書類などを作成します。確認申請の提出・工事届・補助金等


07.地盤調査
建物を建てる前に、地盤がどの程度の建物の重さに耐え、沈下に抵抗する力(地耐力)をもっているかを調べるため地盤調査を行います。
(スウェーデン式サウンディング試験)


08.地鎮祭
家を建てる前に土地に住む神様を祝い鎮め、工事が安全に進むことを願い家の繁栄と安心安全に暮らしていけるようにと祈願いたします。


09.地盤補強工事
地盤調査の結果に基づき、必要な場合は建築士と協議をしながら補強の方法を考えます。表層改良工法・柱状改良工法・鋼管杭工法


10.基礎工事
建物の土台作りとして重要な工事です。建物の土台となる範囲にコンクリートを敷き詰めるベタ基礎を採用しています。地面から発生する湿気やシロアリの侵入を防ぐことができるため、耐久性に優れた建物をつくることができます。



11.第三者機関による検査(基礎配筋)
検査員が現場に来て検査と確認をします。


12.刻み作業
自社作業場にて心をこめて刻みます。


13.上棟
いよいよ棟上げです。早朝から大きなレッカー車がきて大工職人達がたくさん集まり、手慣れた職人達でも現場では緊張感が伝わります。土台だけの状態から柱を立てたりカケヤで組み上げていきます。車知栓継ぎ(しゃちせんつぎ)・金輪継ぎ(かなわつぎ)・蟻組み(ありぐみ)と職人の技も光ります。この日の為に作業場で丁寧に手刻みした材料が実際正確に組み上がる気持ちよさここに大工の喜びと達成感を味わう瞬間。当日で家の骨組みが出来上がり、建物の形が現れとても感動的です。棟上げ後は、当社とお施主様で上棟式を行います。土地や建築を司る神様に感謝し、工事の安全と建物が末永く丈夫でありますようにとお祈りして安全祈願とお清めをします。お餅やお菓子投げもできます。




14.第三者機関による検査(構造・金物)
検査員が現場に来て検査と確認をします。


15.屋根工事
屋根材は主に瓦を使用しています。耐久性もありとても美しいです。平板瓦・和瓦・S型瓦など外観デザインに合わせて選定できます。シンプルな形状のものも多くお好みの形や色から選んでいただけます。
*太陽光パネルの設置もできます。


16.外壁工事
左官職人の手仕事により外壁を塗っていきます。主にモルタルの外壁を使用しています。コテ使いや塗り方一つで風合いが変わり美しい仕上がりになります。


17.造作工事
大工工事 | 床工事・断熱・フローリング・ドア枠・窓枠・天井など |
---|---|
電気工事 | 配線コンセント・スイッチ他 |
給排水衛生工事 | 給水・給湯・配管工事 |
左官工事 | 珪藻土で壁を塗り仕上げる |
内装工事 | クロス工事 |
木製建具工事 | オリジナル建具の作成と取付 |
畳 | 国産い草使用 |
設備工事 | キッチン・お風呂・洗面・トイレ・照明器具・エアコンなどの取付 |





18.完了検査
全ての工事完成後、当社で清掃作業を行います。
傷や汚れ・設備等不備がないか隅々まで確認し、最後の検査を致します。


19.お引渡し
一つ一つを心を込めて大事につくり上げた家。
お施主様のもとへとお引渡しする大切な日です。
新しい家で過ごす幸せな暮らし。木の優しい香りを感じながら
家具や好きなものを少しずつ増やし素敵な時間を過ごしていただきたいです。
設備の使用方法についてのご説明や各種保証書・鍵をお渡しいたします。


20.アフターサービス
安心して暮らしていただけるよう建てた後もサポートいたします。
ご相談・ご質問などございましたらご連絡ください。すぐに対応させていただきます。
